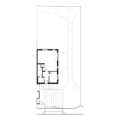
Villa Resort Kbely Dům 15
dispozice:
4+kk
podlahová plocha:
116 m2
pozemek:
505 m2

Uvedená vyobrazení mají pouze ilustrativní charakter a nemusí zcela odpovídat stavebnětechnickému řešení bytu.
4+kk
116 m2
505 m2

Uvedená vyobrazení mají pouze ilustrativní charakter a nemusí zcela odpovídat stavebnětechnickému řešení bytu.