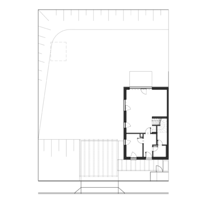
Villa Resort Kbely Dům 2
dispozice:
5+kk
podlahová plocha:
140 m2
užitná plocha:
131 m2
pozemek:
575 m2

Uvedená vyobrazení mají pouze ilustrativní charakter a nemusí zcela odpovídat stavebnětechnickému řešení bytu.
5+kk
140 m2
131 m2
575 m2

Uvedená vyobrazení mají pouze ilustrativní charakter a nemusí zcela odpovídat stavebnětechnickému řešení bytu.