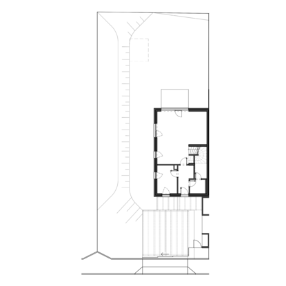
Villa Resort Kbely Dům 6
dispozice:
5+kk
podlahová plocha:
140 m2
užitná plocha:
131 m2
pozemek:
479 m2

Uvedená vyobrazení mají pouze ilustrativní charakter a nemusí zcela odpovídat stavebnětechnickému řešení bytu.
5+kk
140 m2
131 m2
479 m2

Uvedená vyobrazení mají pouze ilustrativní charakter a nemusí zcela odpovídat stavebnětechnickému řešení bytu.