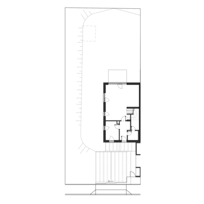
Villa Resort Kbely House 16
disposition:
4+kk
floor area:
116 m2
land:
509 m2

The images shown are only illustrative and may not fully correspond to the construction and technical solution of the apartment.
4+kk
116 m2
509 m2

The images shown are only illustrative and may not fully correspond to the construction and technical solution of the apartment.