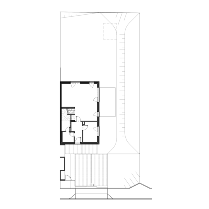
Villa Resort Kbely House 7
disposition:
5+kk
floor area:
140 m2
usable area:
131 m2
land:
482 m2

The images shown are only illustrative and may not fully correspond to the construction and technical solution of the apartment.
5+kk
140 m2
131 m2
482 m2

The images shown are only illustrative and may not fully correspond to the construction and technical solution of the apartment.